FINCA CAS PERETS
In the most popular finca area on Mallorca near Santanyi (5min also to Ses Salines), we are building this modern country house in Fincastyle® on a plot of 18,500 m² with a private driveway.  The entire light-flooded finca is spacious, modern and extremely functional divided on one level. 
The open 65 m² living-dining-cooking area, with 4 meters of ceiling height, opens on both sides to the covered terraces with chill-out areas. Thus, the inside becomes the outside. Here too, your guests will be able to enjoy BBQ from your outdoor kitchen at long dining tables. The 10 meter infinity pool will fulfill your desire to swim long laps. 
Three suites with dressing rooms, bathrooms and a separate full guest area open to terraces via large sliding windows. The roof terrace with over 41 m², the utility room, open fireplace, carport, sauna, outdoor shower and covered terraces complete the finca ensemble. 
The modern finca is perfectly illuminated and has more than 22 meters of built-in wardrobes, dressing rooms. Modern sustainable architecture, built according to the latest thermal standards, in double-walled brick construction (we are the only company in Mallorca that builds this way!) with complete thermal insulation.
The equipment, technology and interior finishes meet the highest standards. 
PROJECT:
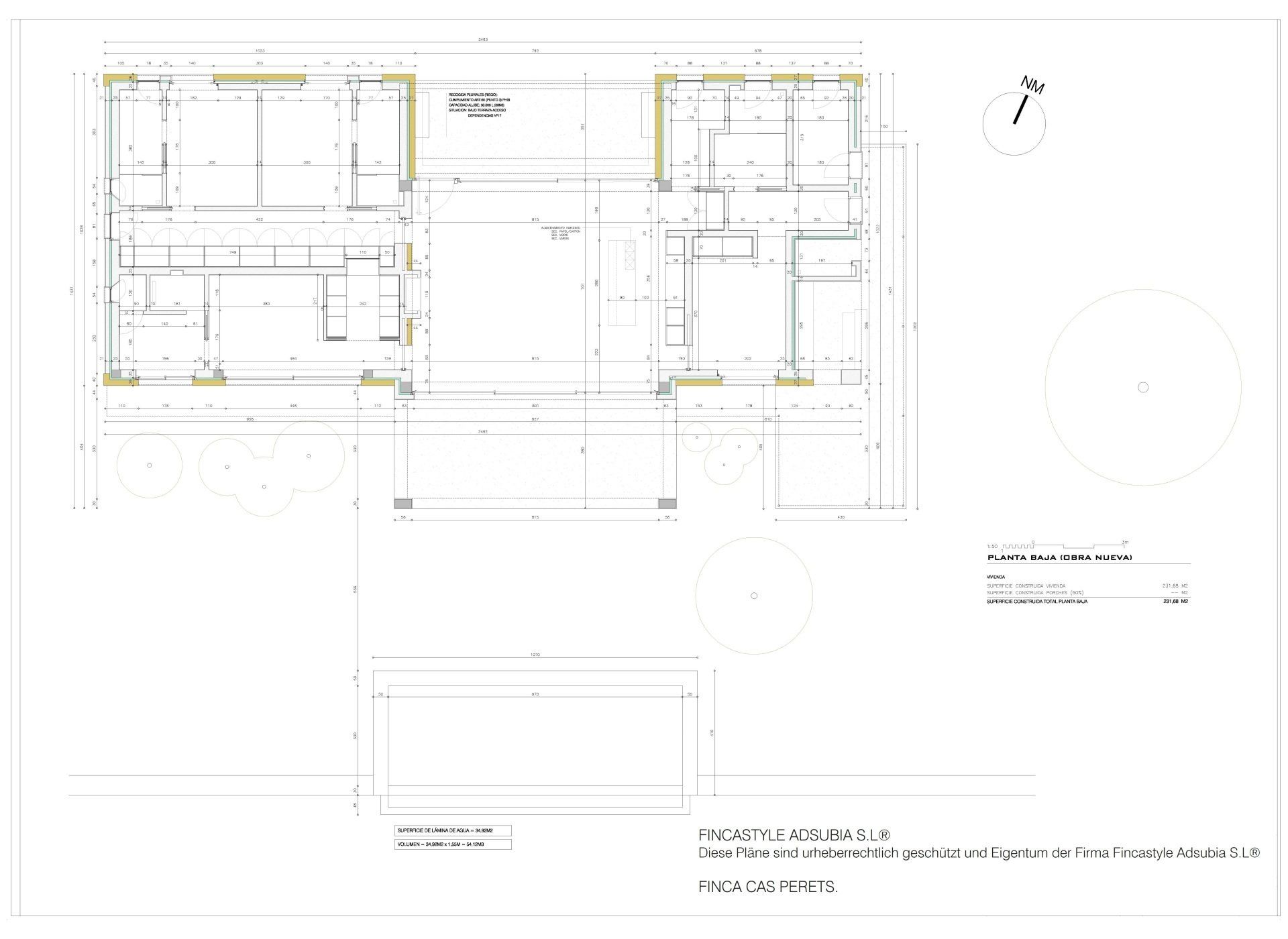
Fincastyle® house, with a total construction surface of 395,5 m²
TOTAL SURFACE: 395,5 m²
LIVING SURFACE: 232 m²
PLOT: 18.500 M²
TERRACES: 129 m²
PERGOLAS: 48 m²
barbecue & outdoor shower: 10,12 m²
POOL TERRACE: 115 m²
INFINITY POOL: 10 X 3,5 M
Price complete: 2.95 m
IN CONSTRUCION (Completion August 2026)
SANTANYI ,MAllORCA
 
 
  
 













