IHRE FINCA AUF MALLORCA, SES SALINES
Wir bauen Ihre Finca schlüsselfertig auf dem Grundstück Ihrer Wahl auf Mallorca.
Hier ein Beispiel:
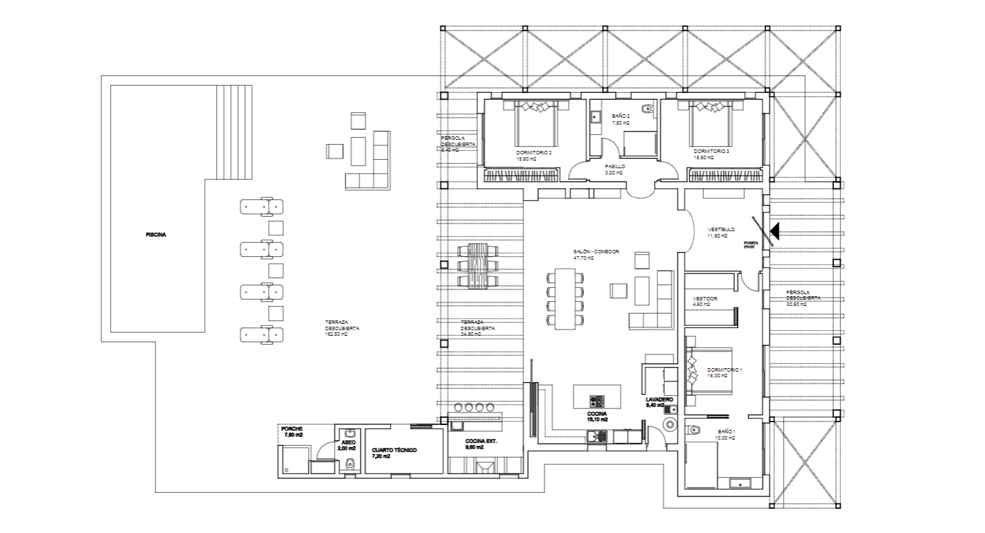
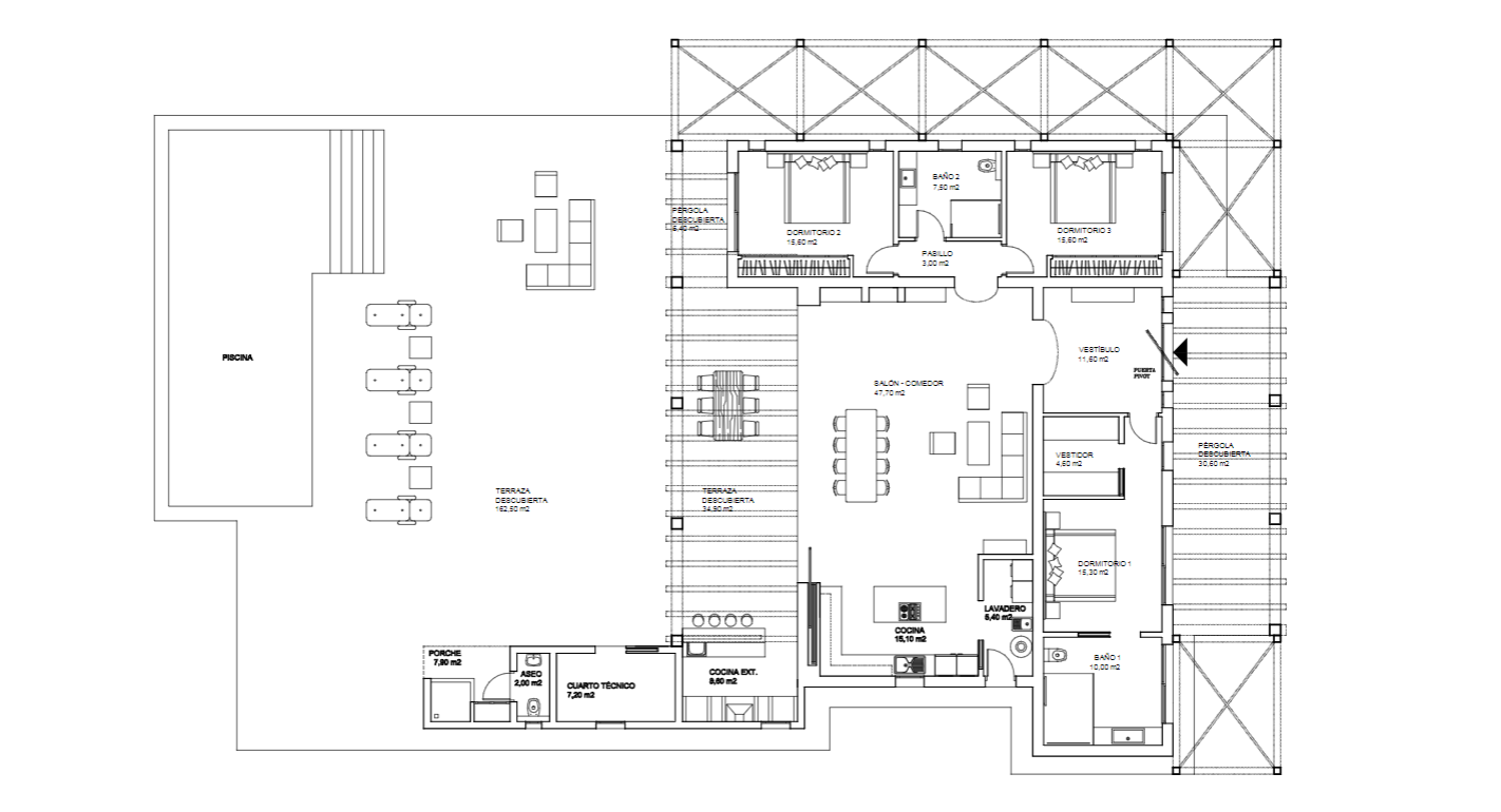
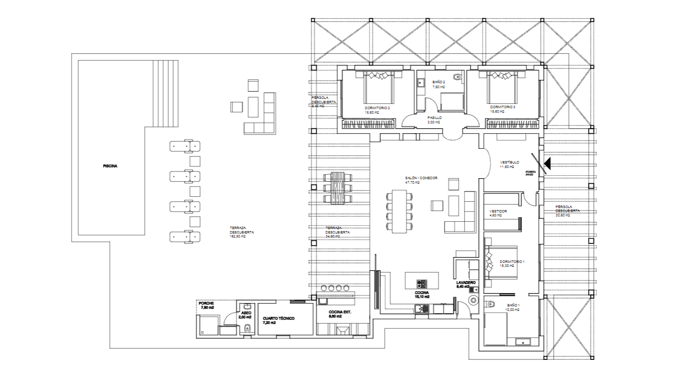
Ihre Finca bietet einen großen Salon, welcher sich zur Poolseite komplett öffnet mit Kamin und offener perfekt ausgestatteter Küche und Hauswirtschaftsraum.
Ein Masterschlafzimmer mit großem Bad en Suite und Panoramafenster sowie separater Ankleide, sowie 3 weitere Schlafzimmer mit Bad en Suite.
Ihr Fincastyle® Traum ist durch den Einsatz der großen bodentiefen Fenster sehr hell und lichtdurchflutet. Zentrale Klimaanlage mit Einzelraumsteuerung, Fußbodenheizung über Wärmepumpen sorgen das ganze Jahr über für ein angenehmes Klima.
Das Haus verfügt über eine stylische Innenarchitektur mit natürlichen Elementen wie Holz und Naturstein, kombiniert mit hochwertigen Materialien. Der natürliche mediterrane Garten um die Finca wird von einem Gärtner angelegt. Auf der Poolterrasse gibt es eine Sommerküche und einen Chillout-Bereich, wo Sie wunderbare Stunden mit Familie und Freunden verbringen können.
Perfekt ergänzt wird dieses Fincastyle® Projekt durch einen Salzinfinitypool von 10 Meter Länge, Gäste-WC und einen Technikraum, sowie einem Carport.
Modernste nachhaltige Architektur, nach neuesten wärmetechnischen Standards erbaut, in doppelwandiger Ziegelbauweise mit kompletter Wärmedämmung.
Die gesamte Finca ist State of the Art ausgestattet, mit privater Zufahrt, elektr. Tor, Alarmanlage, Videoüberwachung, Smart Home System, LED-Lichtkonzept, Außenpersianer. Zu der beliebten, historischen Stadt Santanyi mit allen Annehmlichkeiten, benötigen Sie 10 Minuten, nach Ses Salines 2 Minuten. Zum schönen weißen Sandstrand, Es Trenc 10 Minuten.
PROJEKT:
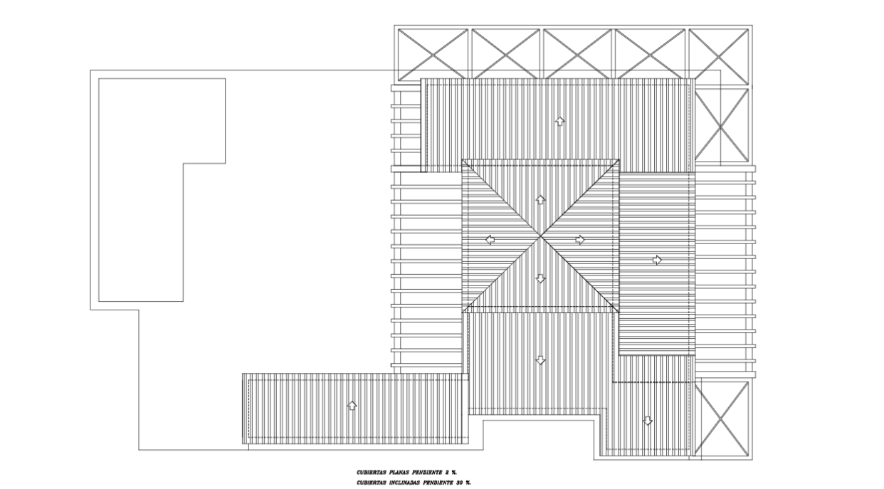
Ihr Fincastyle® Haus, mit gesamt 380 m² Konstruktionsfläche
WOHNFLÄCHE: 230 M²
GRUNDSTÜCK: 14.800 M²
Infinitypool: 10 x 3,5 m
- 3- 4 Schlafzimmer mit Bad en Suite
- Ankleide
- offene Küche- Salon
- Hauswirtschafts- Technikraum
- Galerie
- Pooltechnik
- Außenküche
- Carport
- Überdachte Terrassen
- Poolterrasse
- BBQ & Außendusche
Preis komplett: € 1.700.000.-

















